Wir bauen. Und fertigen Leuchtbeton für eine einzigartige Atmosphäre.
Für das Lagunen-Erlebnisbad Willingen produziert die SCHiCK Unternehmensgruppe hochwertige Betonfertigteile, die nicht nur langlebig und widerstandsfähig sind, sondern auch durch einen besonderen Leuchteffekt überzeugen. Dank der Verwendung von weißem Zement und integriertem Leuchtgranulat entfaltet sich bei Dunkelheit eine außergewöhnliche Optik, die das Ambiente des Erlebnisbads bereichert.
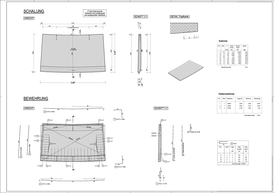
Im Rahmen dieses Projekts werden insgesamt 53 Bauteile gefertigt, die verschiedene Bereiche des Bads ausstatten. Dazu gehören unter anderem Umrandungsplatten für das Außenbecken, Liegedecks, Stegplatten sowie Duschwannen. Insgesamt umfasst das Projekt die Herstellung von 47 Kubikmetern Weißbeton, der speziell für diese Anwendung entwickelt wurde.
Die Betongüte wurde nicht nur für den hohen Salzgehalt aus dem Solebecken erhöht, sondern auch so konzipiert, dass er eine hohe Widerstandskraft gegenüber maschinellen Reinigungsgeräten aufbringt.
Zusätzlich wird die Oberfläche der Platten mit einem Silikat behandelt, um sie weiter zu verdichten und zu härten, somit erzielen wir das Maximum, was im Betonbau möglich ist.


